Catalog | 412-150-100
Bell 205, 212, 412 Breeze Eastern 600 lb. Hoist (Includes hoist system and provisions)
412-150-100
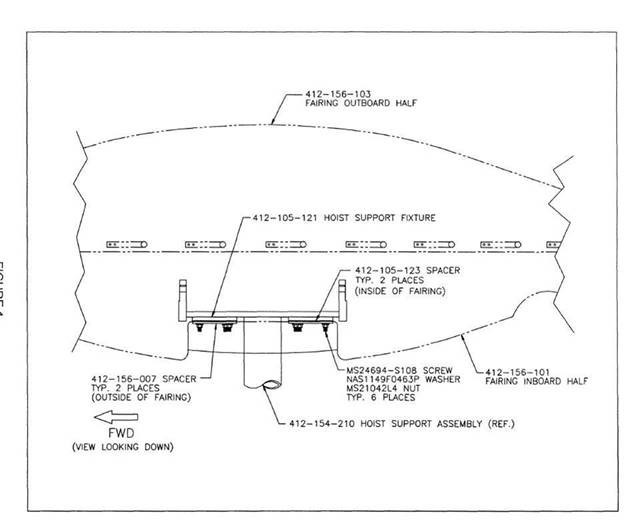
External Rescue Hoist Kits were designed for maximum safety, utility, and ease of installation and operation. Kits provide provisions for installation of Breeze-Eastern or Goodrich Hoists (300 lb. for the 206 and 407 and 600 lb. for the 205, 212, 412, 412EP, and UH-1H). The 600 lb. Hoist Kit can be easily adjusted for generous cable/skid tube clearance for both low and high skid gear configurations. The Hoist System comes with the Rescue Hoist Safety Hook, which incorporates a latch mechanism with a positive lock feature, preventing d-ring rollover failures. An optional skid guard kit available if aircraft is equipped with floats (600 lb. only). All External Rescue Hoist Kits quickly install or remove once the provisions are initially fitted to the aircraft. The kits come complete with required hardware, electrical materials, installation instructions, maintenance manual, flight manual supplement and STC. The Goodrich Hoist comes complete with optional symmetrical braking.
If helicopter is equipped with Emergency Floats, a Skid Guard Kit is available upon request.
Make: Bell
Model: 212,412,412CF,412EP,AB412,AB412EP,205A-1,205B





